Rąstinio namo G2 projektas

Price:

14,100.00 €


Modernios pastoginės projektas
Modernios pastoginės projektas
1,900.00 €
2,000.00 € (5% OFF)
Rąstinio namo L216 projektas
Rąstinio namo L216 projektas
11,900.00 €
11,900.00 €

Rąstinio namo G2 projektas

(0 review)

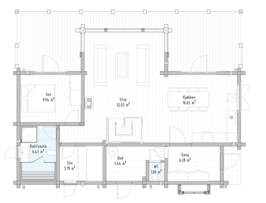
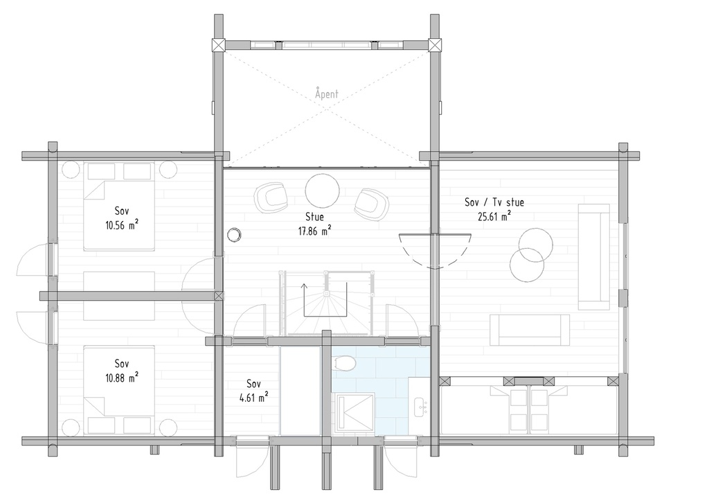
Šis erdvus ir elegantiškas 180,22 m² ploto rąstinis namas sukurtas patogiam gyvenimui visai šeimai. Penki miegamieji užtikrina pakankamai vietos tiek šeimos nariams, tiek svečiams, o du vonios kambariai su papildomu WC suteikia komforto net ir didesniam gyventojų skaičiui. Didelis svetainės ir virtuvės plotas leidžia mėgautis bendra laisvalaikio zona bei kurti jaukias akimirkas su artimaisiais.

Rąstinė konstrukcija ne tik garantuoja tvirtumą ir ilgaamžiškumą, bet ir suteikia namui natūralų šilumos pojūtį. Dideli langai užtikrina puikų natūralios šviesos patekimą į namus, sukurdami harmoningą ryšį su gamta. Erdvus 6,47 m² vonios kambarys su sauna – tikra poilsio oazė po ilgos dienos.

Funkcionalus išplanavimas leidžia efektyviai išnaudoti visas erdves: papildoma sandėliavimo patalpa (5,64 m²) puikiai tiks sezoniniams daiktams laikyti, o 6,28 m² holas sukuria erdvų įėjimą į namus. Namą galima pritaikyti pagal individualius poreikius, keičiant interjero sprendimus ar pridedant papildomas funkcines zonas.

Kaina už projektą DWG/IFC formatu. Aukščiausios kokybės medžiagos ir išskirtinis dizainas garantuoja prabangų, patogų ir ilgalaikį gyvenimą gamtos apsuptyje.

14,100.00 € 14100.0 EUR 14,100.00 €

14,100.00 €


    This combination does not exist.

    100% Original
    30 Days Return
    Free Delivery

    Share :